- Водяной нагреватель со смесительным узлом с 2-х или 3-х ходовым клапаном.
- Фреоновый охладитель (управление ККБ от вентустановки).
- Роторный рекуператор.
- Воздушные клапаны с электроприводом с возвратной пружиной.
- Вентиляторы серии EC.
- Фильтры 790-865-300-8 "EU4-12000 Aqua" (опционально M5).
- Система цифровой автоматики JetLogic с датчиками и пульт JLV135 c Wi-Fi.
- Внимание: влажность вытяжного воздуха в холодный период не должна превышать 40%; запрещено использовать вентустановку для обслуживания бассейнов и др. помещений с влагоизбытками.
Функции автоматики:
- Управление клапаном смесительного узла калорифера для нагрева воздуха до заданной температуры, защита от замораживания.
- Регулировка скорости вентилятора, 10 ступеней.
- Управление ККБ различного типа, в том числе сигналом 0-10В.
- Контроль загрязненности воздушного фильтра (цифровой датчик давления).
- Восемь недельных сценариев, функции «Комфорт» и «Рестарт».
- Часы реального времени (не сбрасываются при сбое питания).
- Возможность создания VAV-системы (требуется модуль JL208DP).
- Подключение к системе «умный дом» по ModBus RTU или ModBus TCP.
- Удаленное управление с компьютера или смартфона / планшета.
|
Уровень шума, дБ
|
56 |
|
Maкс. расход воздуха, м³/ч
|
8000 |
|
Мощность, кВт
|
6.6 |
|
Фильтры
|
790-865-300-8 "EU4-12000 Aqua" |
|
Установка
|
Горизонтальная напольная |
|
Частота вращения, об/мин.
|
3530 |
|
Максимальный ток, А
|
29.5 |
|
Статическое давление, Па
|
190 |
|
Потребляемая мощность вентилятора, Вт
|
6400 |
|
Напряжение, В
|
380 |
|
Воздуховод
|
Прямоугольный |
|
Размер прямоугольного канала
|
800х800 |
|
Тип рекуператора
|
Роторный |
|
Тип нагревателя
|
Водяной |
|
Тип охладителя
|
Фреоновый |
|
Wi-Fi
|
Встроенный |
|
Тип электродвигателя
|
EC |
|
Пульт управления
|
Есть |
|
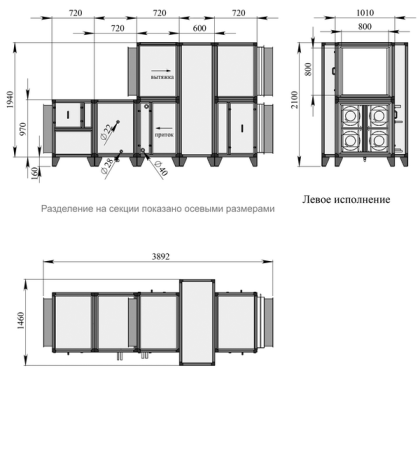
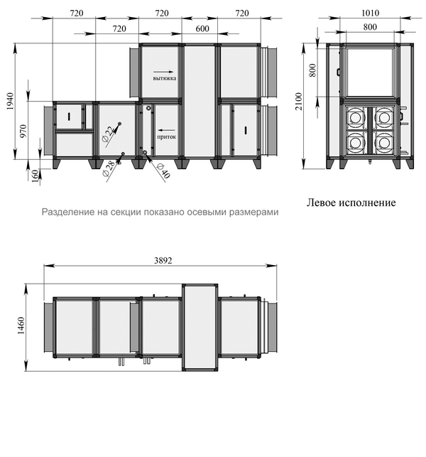
Размеры (ШхГхВ), мм
|
1460х3892х2100 |
Для покупки товара в нашем интернет-магазине выберите понравившийся товар и добавьте его в корзину. Далее перейдите в Корзину и нажмите на «Оформить заказ» или «Быстрый заказ».
Когда оформляете быстрый заказ, напишите ФИО, телефон и e-mail. Вам перезвонит менеджер и уточнит условия заказа. По результатам разговора вам придет подтверждение оформления товара на почту или через СМС. Теперь останется только ждать доставки и радоваться новой покупке.
Оформление заказа в стандартном режиме выглядит следующим образом. Заполняете полностью форму по последовательным этапам: адрес, способ доставки, оплаты, данные о себе. Советуем в комментарии к заказу написать информацию, которая поможет курьеру вас найти. Нажмите кнопку «Оформить заказ».
Оплачивайте покупки удобным способом. В интернет-магазине доступно 3 варианта оплаты:
- Наличные при самовывозе или доставке курьером. Специалист свяжется с вами в день доставки, чтобы уточнить время и заранее подготовить сдачу с любой купюры. Вы подписываете товаросопроводительные документы, вносите денежные средства, получаете товар и чек.
- Безналичный расчет при самовывозе или оформлении в интернет-магазине: карты Visa и MasterCard. Чтобы оплатить покупку, система перенаправит вас на сервер системы ASSIST. Здесь нужно ввести номер карты, срок действия и имя держателя.
- Электронные системы при онлайн-заказе: PayPal, WebMoney и Яндекс.Деньги. Для совершения покупки система перенаправит вас на страницу платежного сервиса. Здесь необходимо заполнить форму по инструкции.
Экономьте время на получении заказа. В интернет-магазине доступно 4 варианта доставки:
- Курьерская доставка работает с 9.00 до 19.00. Когда товар поступит на склад, курьерская служба свяжется для уточнения деталей. Специалист предложит выбрать удобное время доставки и уточнит адрес. Осмотрите упаковку на целостность и соответствие указанной комплектации.
- Самовывоз из магазина. Список торговых точек для выбора появится в корзине. Когда заказ поступит на склад, вам придет уведомление. Для получения заказа обратитесь к сотруднику в кассовой зоне и назовите номер.
- Постамат. Когда заказ поступит на точку, на ваш телефон или e-mail придет уникальный код. Заказ нужно оплатить в терминале постамата. Срок хранения — 3 дня.
- Почтовая доставка через почту России. Когда заказ придет в отделение, на ваш адрес придет извещение о посылке. Перед оплатой вы можете оценить состояние коробки: вес, целостность. Вскрывать коробку самостоятельно вы можете только после оплаты заказа. Один заказ может содержать не больше 10 позиций и его стоимость не должна превышать 100 000 р.
