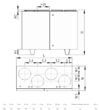
Приточно-вытяжная установка Shuft UniMAX-P 1000 VER-A купить недорого с установкой
0
0
0
Корзина