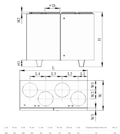
Приточно-вытяжная установка Shuft UniMAX-P 1500 VER-A купить недорого с установкой
0
0
0
Корзина