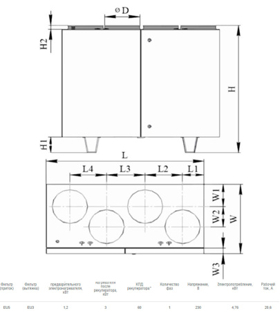
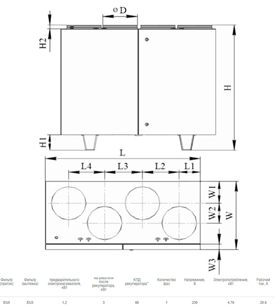
Приточно-вытяжная установка Shuft UniMAX-P 800 VEL-A купить недорого с установкой
0
0
0
Корзина