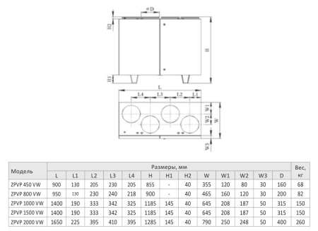
Компактная приточно-вытяжная установка Zilon ZPVP 1000 VWL (вертикальное исполнение) купить недорого с установкой
0
0
0
Корзина